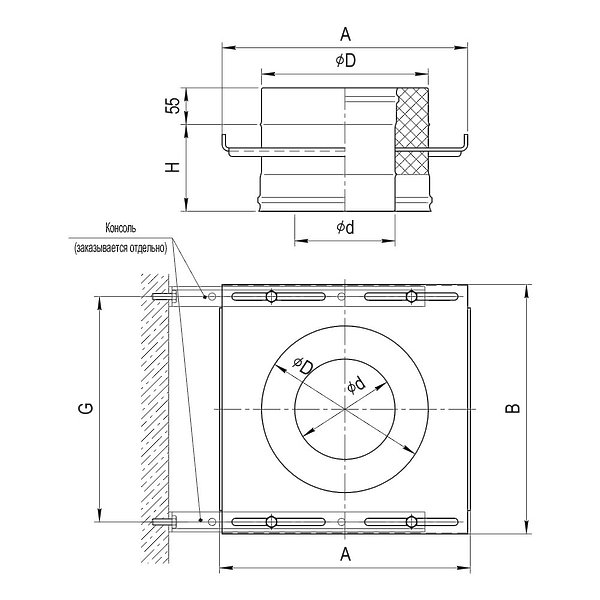
Площадка монтажная
| Площадка монтажная (fd04) | |||||||||||
|---|---|---|---|---|---|---|---|---|---|---|---|
| d | D | G | H | A | B | Масса 0,8х0,5 | |||||
| 80 | 160 | 220 | 125 | 227 | 257 | 1,43 | |||||
| 100 | 200 | 250 | 125 | 287 | 287 | 1,9 | |||||
| 110 | 200 | 250 | 125 | 287 | 287 | 1,9 | |||||
| 115 | 200 | 250 | 125 | 287 | 287 | 1,9 | |||||
| 120 | 200 | 250 | 125 | 287 | 287 | 1,87 | |||||
| 130 | 200 | 250 | 125 | 287 | 287 | 1,87 | |||||
| 135 | 200 | 250 | 125 | 287 | 287 | 1,98 | |||||
| 140 | 210 | 270 | 125 | 277 | 307 | 1,95 | |||||
| 150 | 210 | 270 | 125 | 277 | 307 | 2,58 | |||||
| 150 | 250 | 320 | 125 | 327 | 357 | 2,55 | |||||
| 160 | 250 | 320 | 125 | 327 | 357 | 3,11 | |||||
| 200 | 280 | 370 | 125 | 371 | 407 | 3,03 | |||||
| 220 | 300 | 370 | 125 | 371 | 407 | 3,09 | |||||
| 250 | 350 | 420 | 125 | 423 | 457 | 4,49 | |||||
| 300 | 400 | 470 | 125 | 473 | 507 | 5,27 | |||||
Каталог
выпускаемых изделий
Конструкторский отдел ПК «Феррум» постоянно находятся в
поиске инноваций, расширяя и без того огромный
ассортимент продукции.
Какой дымоход выбрать?
При проектировании дымохода неизбежно задаются резонным вопросом: какой дымоход лучше? Сэкономить и поставить асбестовый?
Может быть, выложить кирпичный? И т.д.
Конструктор дымоходов
С помощью нашего универсального конструктора дымоходов вы сможете спроектировать ваш дымоход онлайн прямо на нашем сайте.
Спроектировать дымоход онлайн i









